Projecten

Ontwerp | Stedebouw
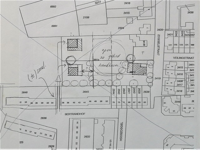
2004 verkaveling park Zoggelstraat

Na het ontwerp voor Zoggelstraat 11, is er gekeken naar een ontwikkeling in de rest van het park ten westen daarvan met een oriëntatie op het achterliggende groen.
Jaren later zijn hier helaas 4 grote volumineuze patiobungalows verrezen.

navigatie

Contactgegevens

Neem gerust contact op



FundAment
Architektuur en Stedebouw
Dort Spierings (dr. ir. T.G.M.)

Kerkstraat 7A
5401 BC   UDEN

Routebeschrijving

KvK 1608 8262

06 - 5395 0068

dort@fundament.nu

www.fundament.nu